| 品牌河南永兴锅炉集团有限公司 | 有效期至长期有效 | 最后更新2025-11-07 14:29 |
| 蒸汽压力0.7MPA | 蒸汽温度170℃ | 热效率97% |
| 浏览次数165 |
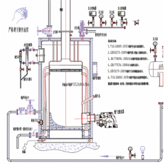
河南1吨燃气蒸汽锅炉 1吨锅炉价格
洗衣机给我们的生活带来了很大方便,但是对于大量的布草以及大件的布草,并非 般的洗衣机能够完成,尤其是在 些工厂、医院、宾馆酒店等,每天都有许多要洗涤的东西,尤其是水洗厂,每天要洗涤来自于四面八方的肮脏布草,这些地方都需要使用大型洗涤设备,洗涤设备包括洗衣设备、烘干设备以及烫平设备、折叠设备等,但是不管哪 种,都需要进行加热,加热方式有两种, 种是电加热,还有 种是蒸汽加热。
蒸汽锅炉
对于洗涤设备的加热,虽然使用电加热比较方便,但是成本也高,尤其是水洗厂里面,设备每天不停运转,电加热无疑会让成本大大提高,所以经济的方法就是使用蒸汽加热,这就要配置蒸汽锅炉,那么如何给自己的洗涤设备配备蒸汽锅炉呢?河南1吨燃气蒸汽锅炉 1吨锅炉价格
想要为自己的洗涤设备配备到合适的锅炉, 要算 下锅炉所需要的耗气量,锅炉的耗气量要能够满足全套洗涤设备的需要,烘干设备中的熨烫设备耗气大,而洗涤设备耗气量较小,不管是哪种耗气设备,都需要加起来得到的总耗气量就是锅炉的耗气量。
客服热线:

