
型号:RSSYR01616A1-GC5-HH-400-P1
TBI旋转系列滚珠丝杆花键 特点:
1.旋转方向零间隙/高定位精度
螺帽与钢珠接触角为 40°,採用轴承 DB 型 ( 背对背式组合 ) 设计,由于珠沟有效中心间的宽跨度使得这种设计特别适用于承受力矩荷载。
2.高速性/运行顺畅
旋转系列螺杆皆为高导程设计,可高速流畅平滑的运动。
3.低噪音
透过高精密研磨技术让钢珠在螺帽内平顺的沿切线方向行走,减少因阻滞而产生的噪音及摩擦力。
4.安装简便/节省空间
螺帽与轴承外套 体成型,螺帽体积小、组装空间大。组装时只要将螺丝与轴承外套锁固在支撑座上即可,十分简便。
TBI旋转系列滚珠丝杆花键精度等級
滚珠花键的精度是用花键外筒外径对花键轴支撑部的摆动来表示的。它分为普通 (N)、高 (H)、精密 (P)。
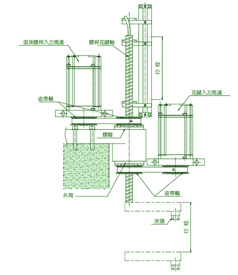
TBI旋转式滚珠丝杆花键RSSY系列结构图


TBI旋转系列滚珠丝杆花键型号说明

规格尺寸图:


产品实物图:



TBI旋转式滚珠丝杆花键RSSY系列安装示例图(仅供参考)

螺母旋转式滚珠丝杠是把单螺母滚珠丝杠与支撑轴承 体化的螺母旋转式滚珠丝杠装置。其螺母为使用循环器方式的钢球循环结构,钢球沿着安装在螺母内部的循环器沟槽移动到相邻的滚动面,然后在负荷区域循环,从而进行无限滚动运动。
适用于水平多关节机械手臂(SCARA)、产业用机器人、自动装载机、雷射加工机、搬送装置、机械加工中心的 ATC 装置等, 适合在旋转运动与直线运动的组合装置上使用。
TBI旋转式滚珠丝杆花键RSSY系列型号
RSSY01616 RSSY02020 RSSY02525 RSSY03232 RSSY04040