

采用聚胺脂发泡或单层面板,它具有强度高、重量轻、耐腐蚀性能好、不易老化、噪声低等特点。该系列风机适用于输送空气和其他不自燃、对人体无害、无腐蚀性气体,气体内不允许有粘性物质,所含的尘土及硬质颗粒物不大于150mg/m³,适用介质温度不得超过80°C。
CFG-I 系列性能参数表

CFG-I 系列结构示意图(水平出风)

水平出风风柜的选型方式(示例说明)

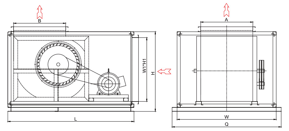
CFG-I 系列外形尺寸表(水平出风)

CFG-I 系列结构示意图(顶出风)

顶出风风柜的选型方式(示例说明)

CFG-I 系列外形尺寸表(顶出风)

离心风机进出风口通用位置示意图

*、风机订货须知:
1、订货时必须说明风机类别,例如:离心排烟风机,离心排风风机,离心加压风机,轴流排烟风机,轴流普通风机等功能。
2、订货时必须提供风机设计参数,风量、风压、功率等重要参数。
3、订货时应提供离心风机的进出风口方向,表示法如图:A、B、C
4、风机安装空间有限,尺寸有特殊要求的订货时必须说明。
5、如机房墙及楼宇通道已封堵,需我司现场拼装,请在订货时注明。
6、风机订货时要注明风机电源要求,380V 50HZ或220V 50HZ。
二、机组使用说明:
1、坐地式风机基础,基础尺寸建议每边比机组外型尺寸大于100mm。
2、电机应接在有电机缺象保护器和过载保护器的电源上,5.5KW以下的电机可直接启动;7.5KW以上的电机应降压启动。机壳应接地。
3、风机的电源为三相380V 50HZ。*检查电源是否符合要求,有无缺相,三相是否平衡后方可与电机相接。接通后*启动电机,检查风机转向是否正确,如转向相反,应停机将电源相序改变,然后将电机电源正式接好。
4、风机进出风口与风道间用软接头连接。
5、新机运行*个月后,应检查皮带松紧程度及螺栓是否松动现象,如有发现应及时调整紧固,以免出现问题。
6、风机常年运行,带座轴承润滑脂应半年更换*次。常温可用2#锂基脂或同性能润滑脂,高温场合需用高温润滑脂。如果过渡季节停机,润滑脂必须保证每年更换*次。



