电机振动给料机又称电机振动喂料机。电机振动给料机在生产流程中,可把块状、颗粒状物料从贮料仓中均匀、定时、连续地给到受料装置中去,在砂石生产线中可为破碎机械连续均匀地喂料,并对物料进行粗筛分,广泛用于冶金、煤矿、选矿、建材、化工、磨料等行业的破碎、筛分联合设备中。

电机振动给料机结构简单,喂料均匀,连续性能好,激振力可调;随时改变和控制流量,操作方便;偏心块为激振源,噪音低,耗电少,调节性能好,无冲料现象;若采用封闭式机身可防止粉尘污染振动平稳、工作可靠、寿命长;可以调节激振力,可随时改变和控制流量,调节方便稳定;振动电机为激振源,噪声低、耗电小、调节性能好,无冲料现象。
根据设备性能要求,配置设计时应尽量减少物料对槽体的压力,按制造厂要求,仓料的有效排口不得大于槽宽的四分之 ,物料的流动速度控制在6-18m/min.对给料量较大的物料,料仓底部排料处应设置足够高度的拦矿板;为不影响给料机的性能,拦矿板不得固定在槽体上。为使料仓能顺利排出,料仓后壁倾角 好设计为55-65度。

电机振动给料机特点:
振动给料机是 种经济技术指标 进的给料设备,和其它给料设备相比具有以下特点:
1、体积小、重量轻、结构简单紧凑;
2、安装、维修方便、运行费赢;
3、效率高,给料能力大;
4、噪音低,有利于改善工作环境;
5、耗电少,功率因数高;
6、本设备在远超共振状态下工作,因而振幅稳定,运行可靠,对各种物料适应性较强;
7、加配龟祝滴夔幕石采 需调整偏心块即可方便地无 调节给料量。
GZ 系列电机振动给料机型号说明:
GZ M Z □
┬ ┬ ┬ ┬
│ │ │ │
│ │ │ └───────────- 处理量
│ │ │
│ │ └───────────── 座式(吊式不标注)
│ │
│ └──────────────- 煤用(普通不标注)
│
└──────────────── 振动给料机代号
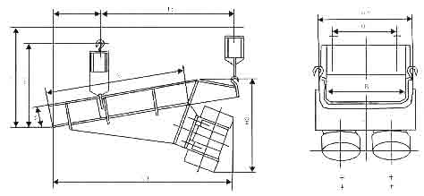
GZ 系列电机振动给料机安装结构图:

GZ系列电机振动给料机主要技术参数:
| 型号 | 生产率t/h | 给料槽尺寸宽*长*高mm | 运行方式 | 粒度mm | 振动电机 | 重量Kg | ||||
| 电压V | 频率Hz | 型号 | 功率KW | 振动频率次/分 | ||||||
| GZ30-4 | 15 | 300*1000*160 | 连续 | 120 | 380 | 50 | YZD2.5-4 | 0.18*2 | 1450 | 110 |
| GZ40-4 | 30 | 400*1200*160 | YZD5-4 | 0.25*2 | 155 | |||||
| GZ50-4 | 50 | 500*1200*160 | YZD8-4 | 0.4*2 | 190 | |||||
| GZ60-4 | 80 | 600*1800*180 | 180 | YZD16-4 | 0.75*2 | 410 | ||||
| GZ70-4 | 100 | 700*1800*200 | 180 | YZD20-4 | 1.1*2 | 440 | ||||
| GZ80-4 | 200 | 800*2000*225 | 200 | YZD32-4 | 1.5*2 | 640 | ||||
| GZ90-4 | 300 | 900*1500*300 | 250 | YZD50-4 | 2.2*2 | 730 | ||||
| GZ110-4 | 400 | 1100*1500*300 | 900 | |||||||
| GZ130-4 | 500 | 1300*1500*400 | 350 | 1000 | ||||||
| GZ70-6 | 80 | 700*1800*200 | 150 | YZD20-6 | 1.5*2 | 960 | 440 | |||
| GZ80-6 | 160 | 800*2000*225 | 180 | YZD30-6 | 2.2*2 | 670 | ||||
| GZ90-6 | 240 | 900*1500*300 | 240 | YZD40-6 | 3.0*2 | 740 | ||||
| GZ110-6 | 320 | 1100*1500*300 | YZD50-6 | 3.7*2 | 940 | |||||
| GZ130-6 | 400 | 1300*1500*400 | 320 | 1040 | ||||||
| GZ150-6 | 500 | 1500*1800*500 | 2000 | |||||||
| GZ180-6 | 800 | 1800*1800*500 | YZD75-6 | 5.5*2 | 2590 | |||||
| GZ200-6 | 1000 | 2000*2000*500 | 360 | 3700 |
||||||


